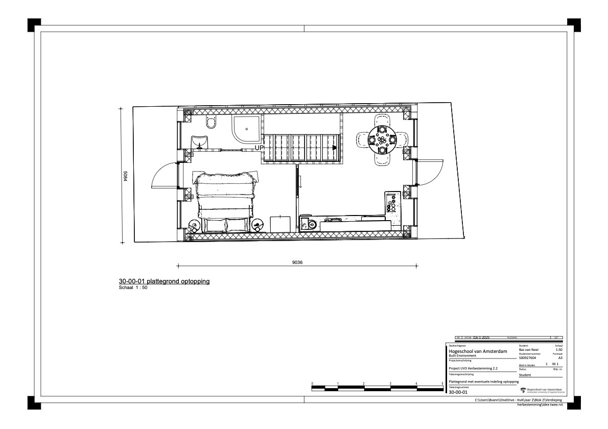
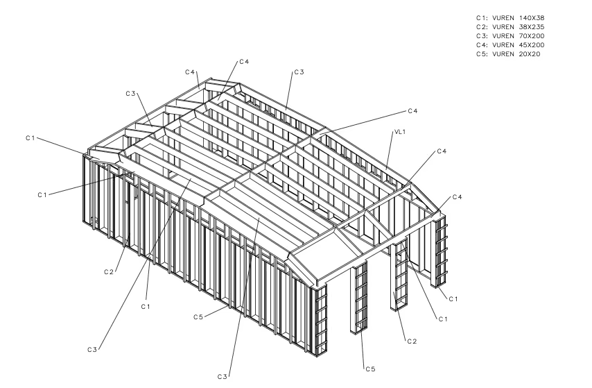
Herbestemming
This project involved the adaptive reuse of an existing building on Herengracht 101, complemented by a rooftop extension. The design respects the historical character of the original façade while adding modern living space above. The extension is carefully integrated through lightweight construction and contemporary materials, creating additional residential units without overpowering the original building. The rooftop also includes terraces and green areas, enhancing the quality of life for future residents.










