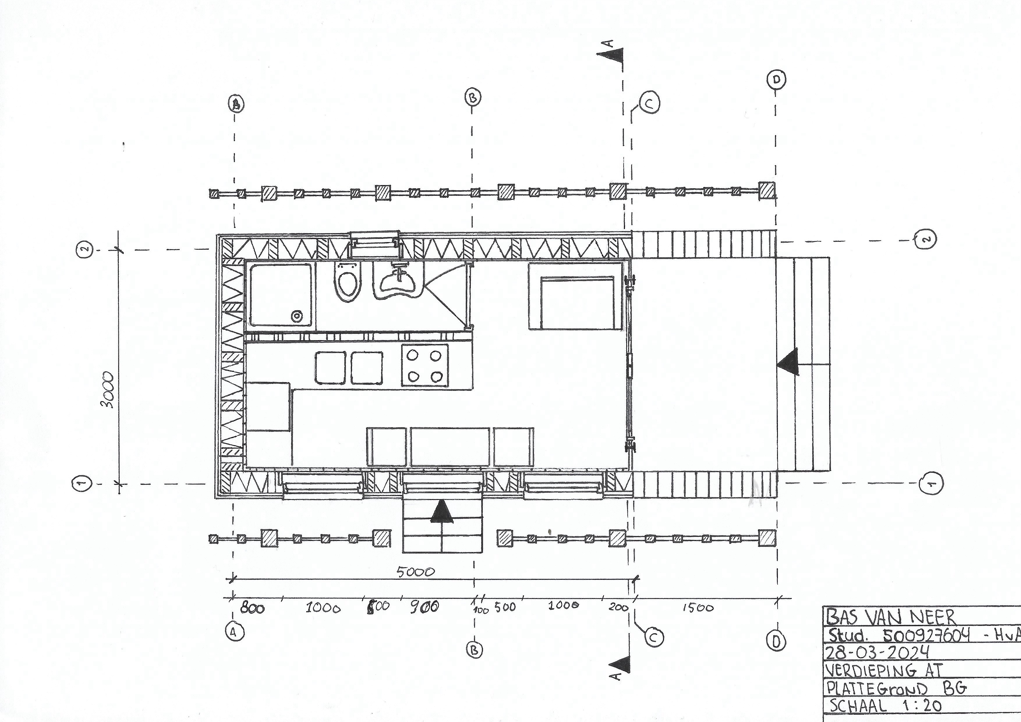
Tiny house
This tiny house features a classic gable roof combined with an additional exterior layer of wooden columns, creating a striking and playful façade. The extra timber shell adds depth and texture while enhancing the overall aesthetic of the compact structure. Despite its small footprint, the design maximizes functionality and creates a unique architectural identity.










